DM4 Hameau Cap Esterel

Alloggi ammobiliati e rurali
2** étoiles

Back Alloggi ammobiliati e rurali 2** étoiles

DM4 Hameau Cap Esterel

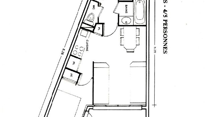
T2 climatizzato di 29 m2 con balcone e parcheggio nella frazione di Cap Estérel, classificato due stelle.

Cucina completamente attrezzata con lavastoviglie, lavatrice, frigorifero con scomparto freezer, piano cottura e microonde/grill.
Camera da letto con letto da 140 cm, due divani letto nel soggiorno, televisione. Bagno con vasca e WC separato.
Piccola vista sul mare (vedi foto). Reception in loco con portineria.
L'appartamento si trova nel complesso Cap Estérel, che dispone di 5 piscine, di cui 2 nel borgo (tessere di accesso fornite), e offre un'ampia gamma di attività.
attività. È vicino alla fermata Hameau del Petit Train, che porta alla stazione Dramont e alla spiaggia del D-Day,
o al villaggio di Cap Estérel.

Graduatorie
2 stelle
Tipo di alloggiamento
Immobile
Appartamento
Capacità
4 capacité maximum
4 capacité maximum
29 m²
1 camere
Lingua
Tedesco
arabo
Francese
Comfort
Balcone
Lavatrice privata
Lavastoviglie
Doccia
Televisione
Vasca da bagno
Attrezzatura
Piscina
Parcheggio privato
Parcheggio
Tennis
Servizi
Animali ammessi
Modalità di pagamento
Bonifico bancario